Nieuwbouwproject Peerkenswegel, 2 app ( VERKOCHT ) en 5 woningen ( LAATSTE 3 TE KOOP )
Verkocht Haasdonk Pastoor Verwilghenplein 30 w3
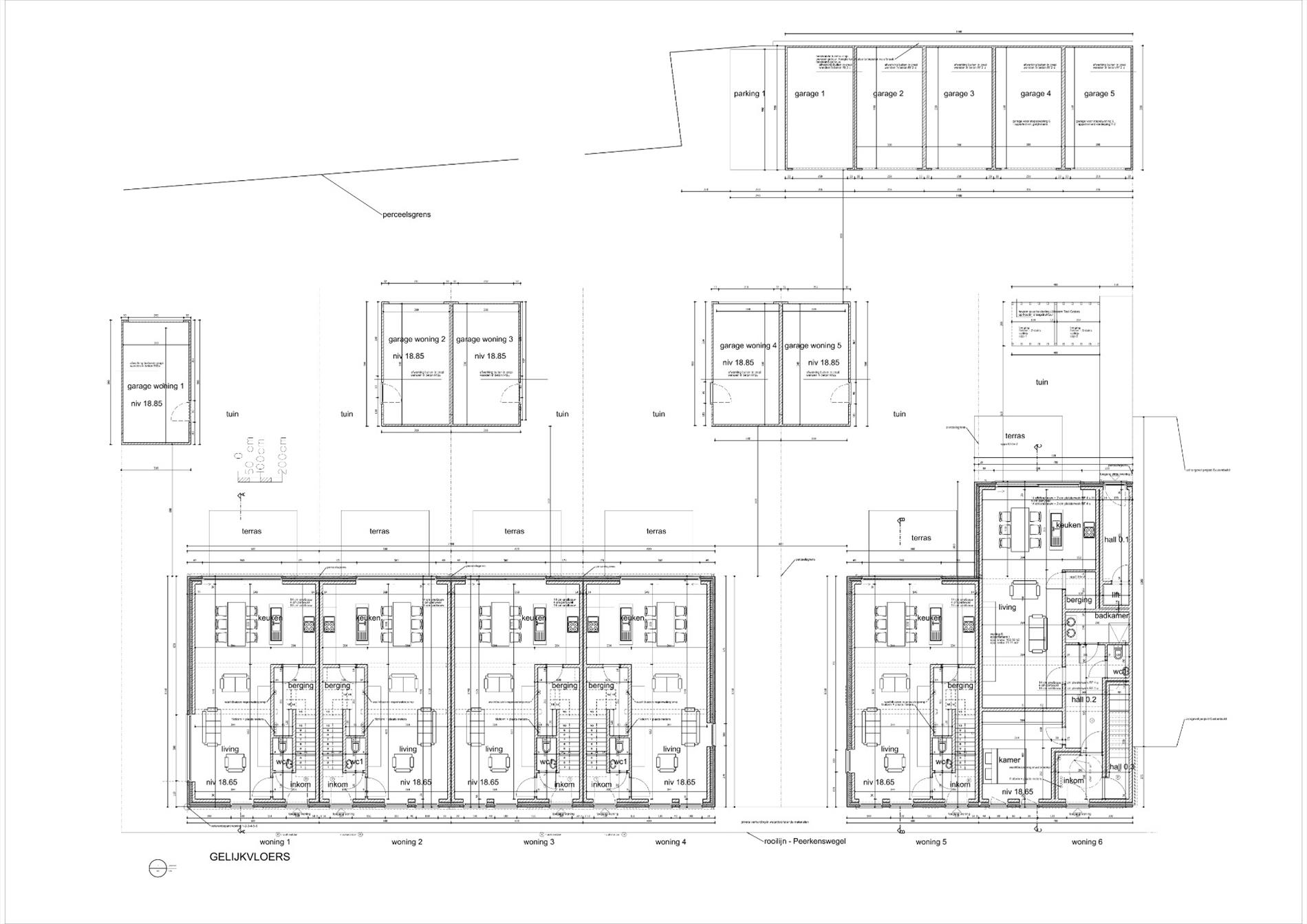
In het gezellige en rustige Haasdonk nabij dorpsplein zal residentie Peerkenswegel gebouwd worden.
1ste fase van 2 appartementen = REEDS VERKOCHT en 5 woningen = REEDS 2 VERKOCHT
Aparte garages mogelijk
Dit betreft een GBB op circa 154 m² bestaande uit inkomhal, 2 aparte toiletten, living, kkn, badk, 3 slpks, tuin-terras.
Meer info op kantoor.
1ste fase van 2 appartementen = REEDS VERKOCHT en 5 woningen = REEDS 2 VERKOCHT
Aparte garages mogelijk
Dit betreft een GBB op circa 154 m² bestaande uit inkomhal, 2 aparte toiletten, living, kkn, badk, 3 slpks, tuin-terras.
Meer info op kantoor.