Lichtrijk nieuwbouwapp op 1e verdieping met 2 slpks en terras.
Verkocht Sint-Niklaas Walburgstraat 70 1.2
Nabij park, scholen, winkels hebben we nieuwbouwresidentie Walburg te koop.
Dit prachtige nieuwbouwcomplex bestaat uit 6 lichtrijke energiezuinige appartementen met 2 en 3 slaapkamers , terras en lift.
App 1.2 heeft een bruto opp van circa 92 m² en een netto opp van 82 m² volgens plan architect.
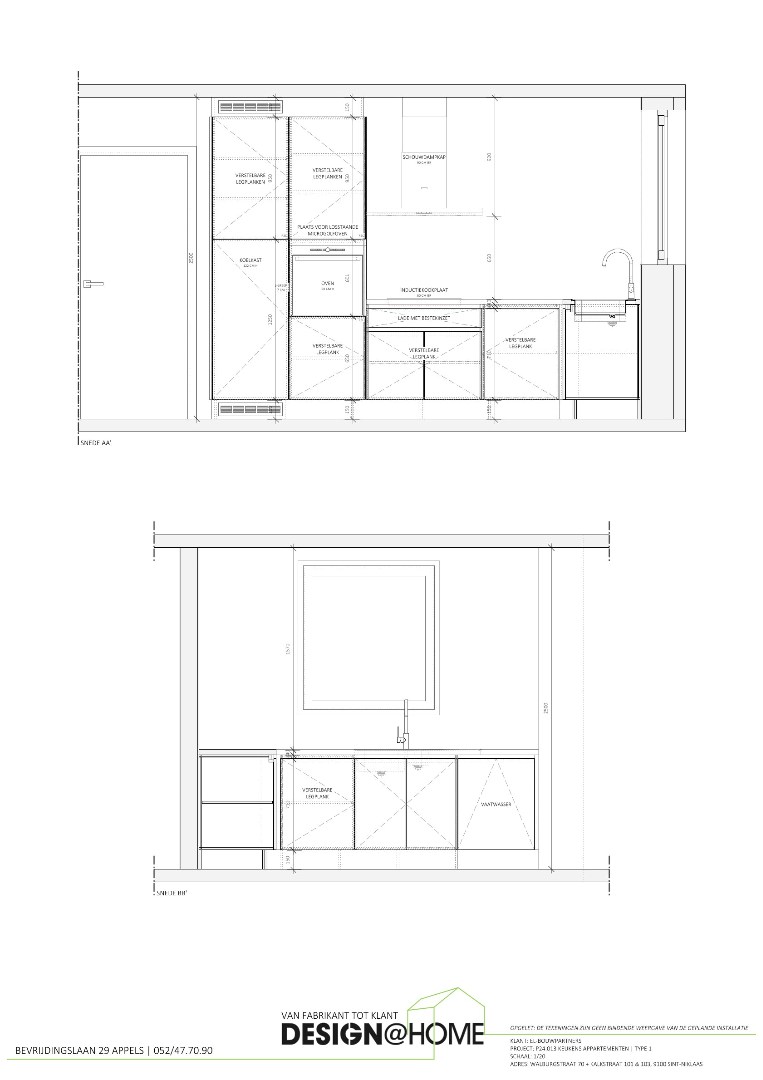
2 slaapkamers, badkamer, berging/wasplaats, living met open ingerichte keuken.
Privatief terras circa 9 m².
€ 299.000 excl 21% btw.
Deze appartementen worden volledig afgewerkt en schilderklaar opgeleverd.
Gemeenschappelijk fietsenlokaal en vuilnisberging.
Meer info op kantoor.
Dit prachtige nieuwbouwcomplex bestaat uit 6 lichtrijke energiezuinige appartementen met 2 en 3 slaapkamers , terras en lift.
App 1.2 heeft een bruto opp van circa 92 m² en een netto opp van 82 m² volgens plan architect.
2 slaapkamers, badkamer, berging/wasplaats, living met open ingerichte keuken.
Privatief terras circa 9 m².
€ 299.000 excl 21% btw.
Deze appartementen worden volledig afgewerkt en schilderklaar opgeleverd.
Gemeenschappelijk fietsenlokaal en vuilnisberging.
Meer info op kantoor.